Trong xu hướng phát triển đô thị ngày nay, mô hình nhà liền kề đang trở thành lựa chọn hàng đầu của nhiều gia đình mong muốn một không gian sống đẹp, gọn gàng, tiện nghi và đồng bộ. Mẫu nhà liền kề 2 tầng diện tích 12x14m do Việt Quang Group thực hiện cho gia đình anh Nhân ở Quận Gò Vấp là một trong những thiết kế tiêu biểu, ghi điểm bởi kiến trúc tân cổ điển sang trọng, hình khối đồng bộ và khả năng tối ưu công năng vượt bật.
1. Kiến trúc liền kề đồng bộ – sang trọng và tinh tế
Tổng thể công trình gồm 3 căn liền kề, thiết kế cùng phong cách tân cổ điển châu Âu, màu trắng chủ đạo kết hợp những đường chỉ phào mềm mại mang lại vẻ đẹp sang trọng nhưng vẫn giữ sự tinh gọn, phù hợp với khu dân cư hiện đại.
Những điểm nhấn kiến trúc nổi bật:
- Hệ mái vòm trang trí tinh xảo, tạo điểm nhấn mạnh ở phần đỉnh mặt tiền.
- Ban công sắt mỹ thuật uốn cong mềm mại, mang nét quý phái đặc trưng của kiến trúc Pháp.
- Cột trụ thẳng đứng tạo cảm giác vững chãi, bề thế cho toàn bộ khối nhà.
- Các đường gờ phào chạy dọc tầng 1 và tầng 2 được tinh chỉnh sắc nét, tạo chiều sâu và sự tinh tế cho mặt tiền.
Toàn bộ các căn được thiết kế đồng nhất, tạo nên sự hài hòa về thị giác và khẳng định đẳng cấp cho gia chủ.
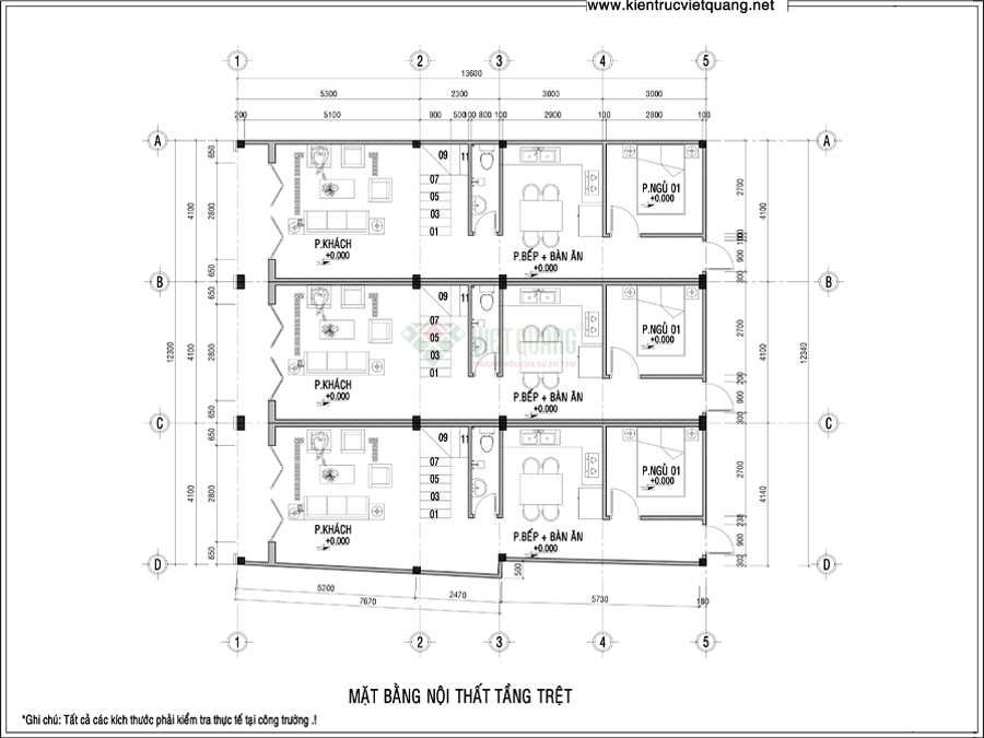
2. Phân chia công năng tối ưu cho gia đình Việt
Diện tích 12x14m mang đến lợi thế lớn về chiều ngang, cho phép bố trí không gian rộng rãi, thoáng đãng và cực kỳ tiện dụng.
Tầng trệt – Không gian sinh hoạt chung
- Phòng khách rộng thoáng ngay cửa vào, đón sáng tốt từ hệ cửa kính lớn.
- Bếp – ăn nối liền, tạo luồng di chuyển mượt mà trong nhà.
- Sàn lát đá và vật liệu chống trầy, đảm bảo thẩm mỹ và độ bền lâu dài.
Tầng 2 – Không gian nghỉ ngơi
- Bố trí 2–3 phòng ngủ tùy nhu cầu sử dụng.
- Mỗi phòng đều có cửa ban công hoặc cửa sổ lớn, đảm bảo thông gió và ánh sáng tự nhiên.
- WC riêng từng phòng hoặc chung tùy từng căn.
Dù thiết kế đồng bộ, mỗi căn nhà vẫn có thể được điều chỉnh công năng theo nhu cầu gia đình.
3. Vật liệu cao cấp – tăng độ bền, tăng giá trị
Công trình sử dụng hệ vật liệu cao cấp, đảm bảo độ bền và mang tính thẩm mỹ cao:
- Cửa kính cường lực khung nhôm: cách âm – cách nhiệt tốt, phù hợp khu đô thị đông đúc.
- Lan can sắt mỹ thuật sơn tĩnh điện: chống gỉ sét, bền màu theo thời gian.
- Phào chỉ composite chống thấm, chống nứt, tuổi thọ cao.
- Sơn ngoài trời cao cấp chống bám bụi và giữ màu tốt.
Toàn bộ mặt tiền được hoàn thiện kỹ lưỡng, mang lại giá trị lâu dài cho công trình.
4. Yếu tố phong thủy trong thiết kế nhà liền kề
Nhà liền kề rất dễ bí khí nếu bố trí sai. Việt Quang Group khắc phục bằng:
- Mặt tiền rộng với cửa lớn giúp lấy sáng tối đa.
- Khoảng sân phía trước tạo minh đường rộng thoáng.
- Ban công thông gió ở tầng 2 giúp lưu thông khí tốt.
- Màu trắng – đen – vàng nhẹ mang ý nghĩa cân bằng, vượng khí cho gia chủ.
Nhờ đó, công trình hài hòa cả về thẩm mỹ lẫn phong thủy sinh khí.
5. Giá trị sử dụng vượt trội – Phù hợp nhu cầu nhiều gia đình
Mẫu nhà này phù hợp với:
- Gia đình trẻ 3–6 thành viên
- Gia đình đa thế hệ
- Người muốn vừa ở vừa cho thuê
- Nhà phố – nhà vườn – khu dân cư mới
Nhà liền kề 2 tầng giúp tối ưu chi phí xây dựng nhưng vẫn đạt được sự sang trọng và tiện nghi.
6. Việt Quang Group – Đơn vị thiết kế và thi công uy tín tại Gò Vấp
Công trình của anh Nhân tiếp tục khẳng định năng lực thiết kế và thi công của Việt Quang Group:
- Thiết kế đúng nhu cầu
- Dự toán rõ ràng
- Thi công chuẩn kỹ thuật
- Bàn giao đúng tiến độ
- Bảo hành – bảo trì tận tâm
Việt Quang Group luôn cam kết mang đến những công trình đẹp, chất lượng và lâu bền theo thời gian.
Mẫu nhà liền kề 2 tầng diện tích 12x14m tại Gò Vấp là sự kết hợp hoàn hảo giữa kiến trúc tân cổ điển tinh tế – không gian sống tối ưu – vật liệu cao cấp – kết cấu bền vững. Đây là lựa chọn đáng giá cho những gia đình yêu thích sự sang trọng nhưng vẫn muốn tối ưu chi phí.

























































































































































































